Готовая квартира с отделкой в клубном доме
ЦАО Арбатский район
Жизнь в сердце столицы среди архитектурных шедевров и главных символов города. В шаговой доступности - театры, выставки, рестораны, спортивные студии и школы.
Жизнь в сердце столицы
среди архитектурных шедевров
и главных символов города.
В шаговой доступности -
театры, выставки, рестораны,
спортивные студии и школы.
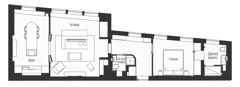
Описание квартиры

- 72,9 м2
- Этаж 2 из 5
- Высота потолков 3,2 м
- В квартире:
- 8 панорамных окон
- вид на архитектурную достопримечательность дом Мельникова
- скандинавский стиль
- мебель из натуральных материалов по индивидуальному дизайн-проекту
- полная комплектация кухонной техникой
- современные инженерные системы с автоматическим управлением
- В доме:
- ландшафтный сад и внутренний двор
- подземный двухуровневый паркинг на 77 машиномест
Планировка квартиры
фотогалерея


















